Rénovation partielle
Localisation : Carrières sur Seine
Mission : Faisabilité
Maître d’ouvrage privé
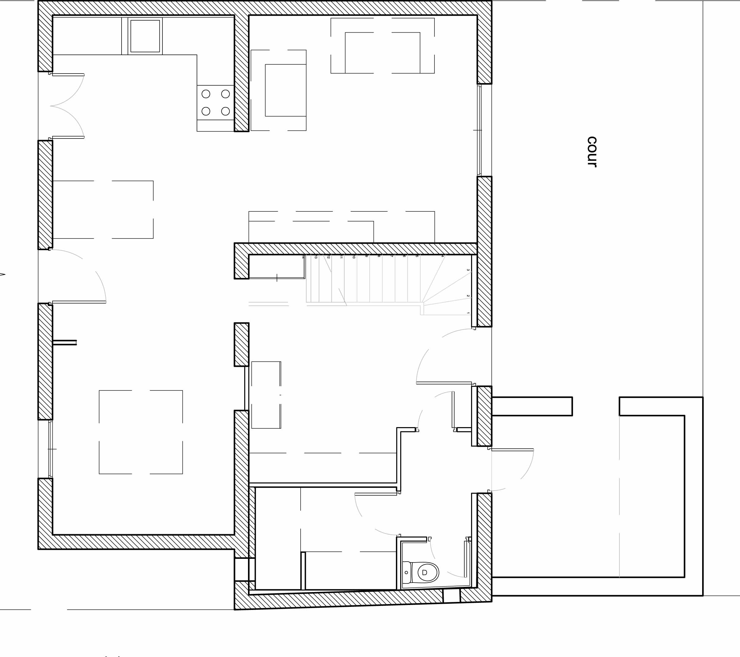
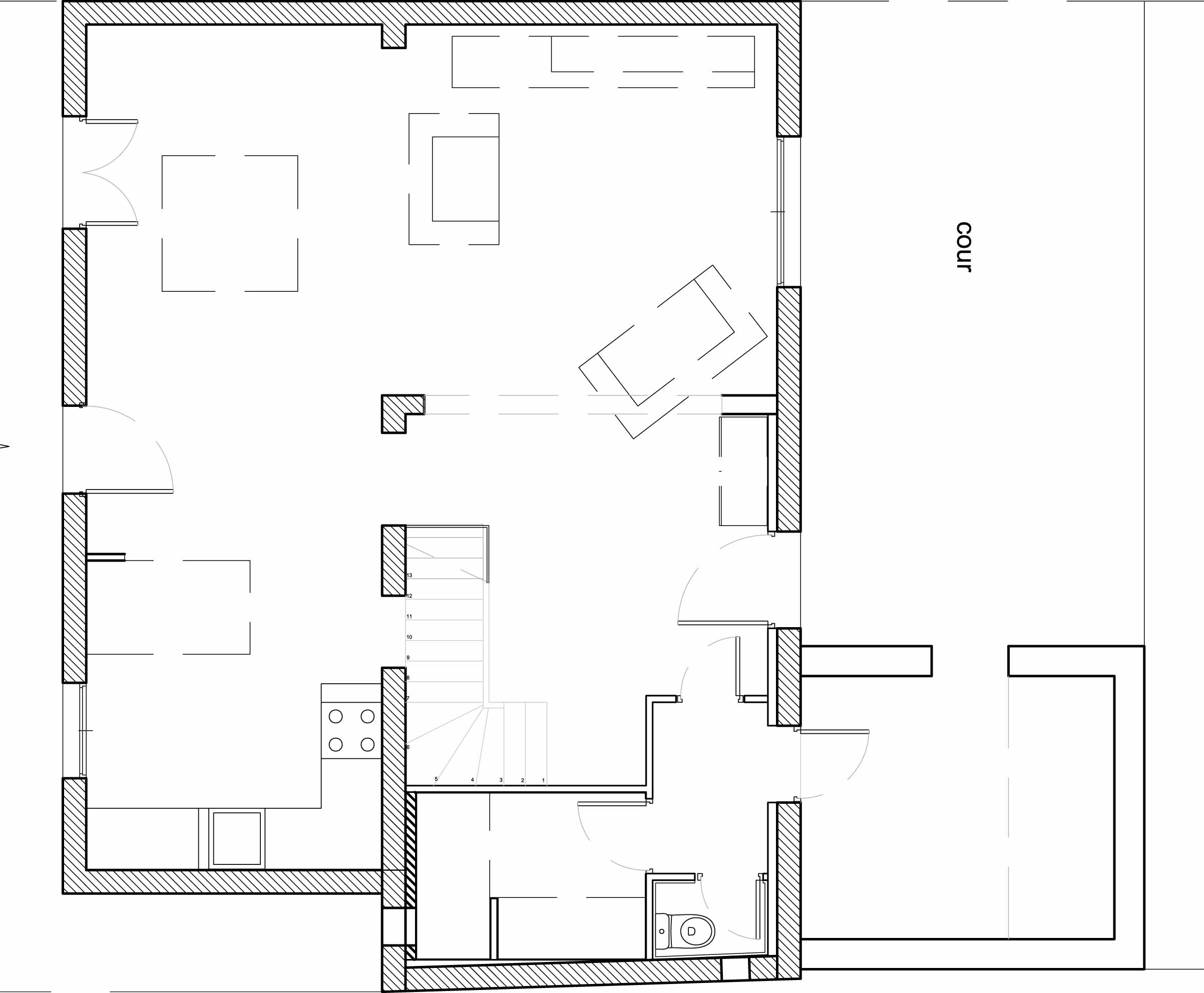
Des travaux d’agrandissement ont été réalisés en 2006 pour cette maison qui comptait initialement un rez-de-chaussée sur sous-sol partiel. Une surélévation a été réalisée afin d’obtenir 4 chambres et 2 salles de bains pour la famille nombreuse. Maintenant , les propriétaires projettent de réaménager le RDC de leur maison. Ils souhaitent récupérer l’espace perdu au centre de l’étage et avoir un accès plus fluide à la cour arrière. Cependant, étant données contraintes liées au règlement d’urbanisme, il ne sera pas possible d’agrandir les ouvertures ni de créer de nouvel accès vers la cour. L’étude de faisabilité leur permettra de se rendre compte des possibilités spatiales et budgétaires pour réflexion avant de se décider à faire les travaux.

Version 1: Remplacement de l’escalier, ouverture de porteurs pour un passage plus fluide vers l’accès à la cour et modification salle de bains.


Version 2: Pour une plus grande ouverture de tout le niveau, déplacement de l’escalier et de la cuisine. Ainsi le séjour est plus grand.

